Category
Workplace, Signature Pieces, Branding
Concept
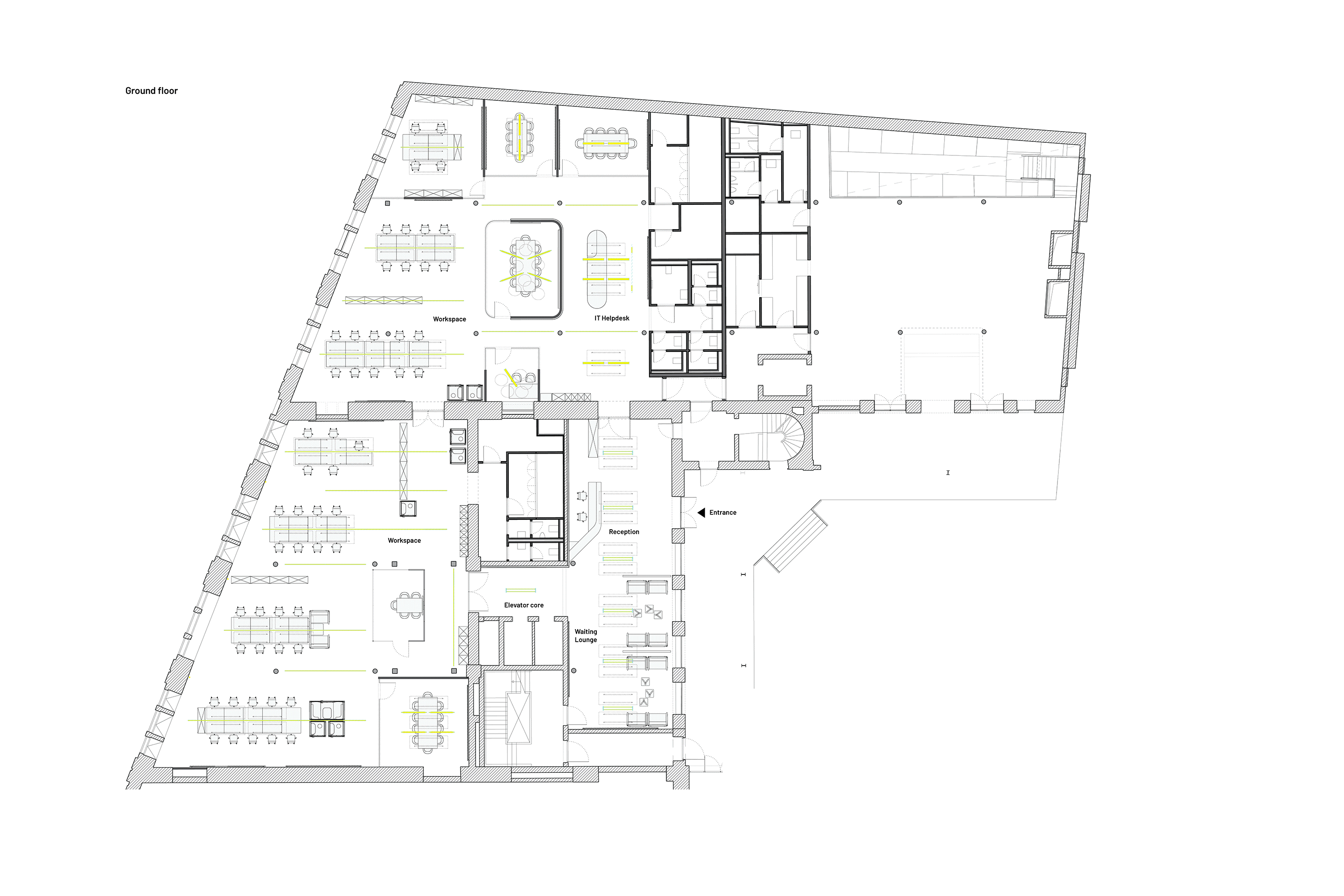
The design of the Gorillas Berlin Headquarters, located in the historic Bötzow Brauerei—once the largest private brewery in Northern Germany—builds on the industrial heritage of the site while introducing a bold spatial language rooted in innovation and contrast.
The office unfolds within the existing structure, where exposed brick, steel columns, and vaulted ceilings remain visible and celebrated. These elements form the backbone of the interior, shaping its identity and anchoring it in place. New interventions are layered carefully, introducing axonometric patterns, unexpected geometries, and moments of playful perspective that add rhythm and visual intrigue.
A key element of the concept is the dynamic tension between privacy and openness. This is achieved through a mix of materials—transparent, tactile, reflective—and a series of room-in-room solutions, which offer zones for retreat without breaking the spatial flow. The result is a working environment that feels both expressive and grounded, open yet intentional.
Client
Gorillas Technologies GmbH
Location
Bötzow Brauerei
Prenzlauer Allee 242-247
D-10405 Berlin
Scope
LP 1-8 (preliminary design, concept design, technical documentation, bidding, construction supervision)
Status
Completed
Size
4.500 m² NFA
Photographers




Human centered
conceived during the height of the Covid-19 pandemic, the headquarter responds to the evolving culture of hybrid work. It introduces a Multi-Space concept that combines adaptability with human-centred design fostering collaboration, supporting moments of focus, and encouraging spontaneous interaction.
The result is an agile, future-oriented workplace that not only meets functional and technological demands but also reflects Gorillas’ values of innovation, connectivity, and community. By blending seamlessly with the brewery’s historic character, the project creates a memorable and authentic environment—one that bridges past and present, and communicates Gorillas’ unique work culture in a way that is both bold and respectful of its context.









Motion & Speed
The reception desk at Gorillas’ Berlin headquarters embodies the brand and culture, taking inspiration from the precision and craftsmanship involved in the assembly of bicycle frames to create a striking entrance statement.
Composed of an array of metal tubes with a gradient of fluid cut lines, the desk reveals contrasting materials and appears to move as viewers shift their perspective, suggesting speed and energy. Warm exposed brick and wood panelling provide tactile, natural counterpoints to the industrial metal, creating a dynamic yet inviting first touchpoint for employees and clients alike.








Discovery
Underliningthe idea of dynamic motion, the design also integrates the principles ofsurprise and discovery, where multifunctional objects are not static elementsbut active participants in the spatial experience. These objects adapt andtransform, interacting both with the architecture and the people who use it. Byblurring the line between function and emotion, they create moments ofunexpected engagement and invite users to constantly rediscover the space.



